Depuis 2015, le bureau MHA met ses compétences au service de projets variés, à travers une approche sensible, humaine et durable.




SW RW_Travaux de transformation et de création de locaux pour un Centre Technique.
GVP_Création d’ateliers d’haute précision pour l’horologerie.
BDC_Transformation et rénovation de locaux artisanaux.
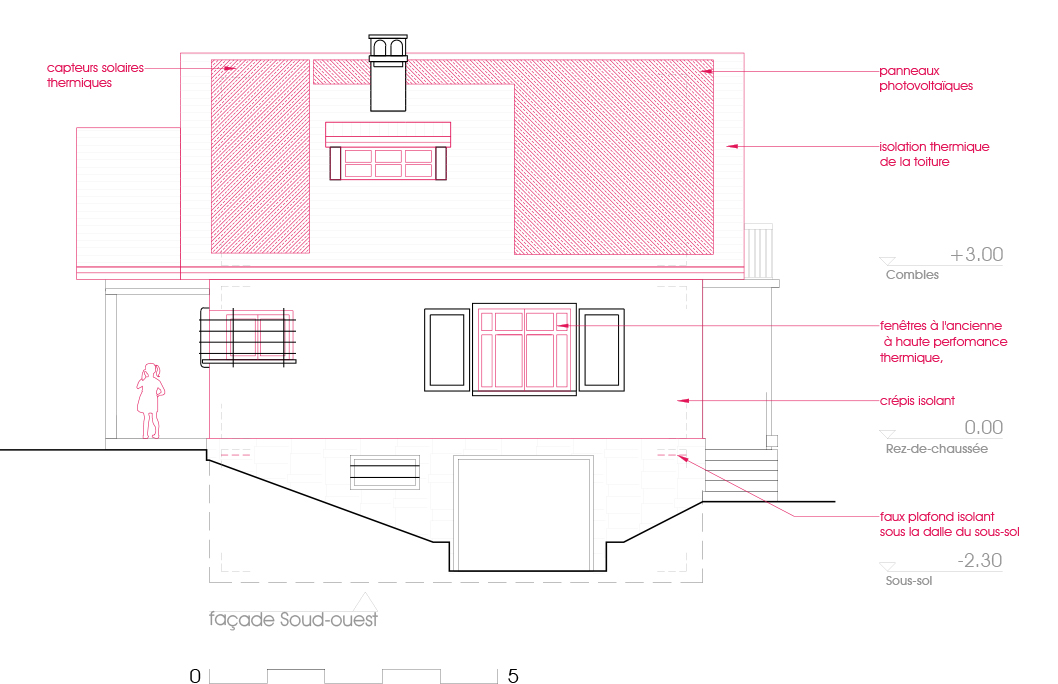
WAG_Rénovation et conversion aux énergies renouvelables d’une villa des années 1930.
SPK_Création d’espaces pour une école de médiamatique.
TLS_Création d’un nouveau workspace concept pour des buraux IT.
APR_Architecture d’intérieur d’une villa mitoyenne.
PRM_Rénovation d’une maison mitoyenne.
MIR_Transformation et rénovation d’un appartement moderniste..
OTM_Réalisation d’un nouveau Centre OTIUM à Meyrin.
VLO_Création d’espaces d’accueil et de travail.
MLA_Conception d’un centre de réhabilitation physio thérapeutique.
MYP_Création d’un centre de réhabilitation physio thérapeutique.
CHB_.Transformation d’un appartement avec studio indépendant.
SEZ_Transformation et extension de deux villas mitoyennes en zone village.
OTP_Rénovation et transformation pour l’extension du Centre OTIUM.
GTK_Rénovation d’une villa en zone agricole.
DIT_Travaux de transformation et de rénovation d’un centre culturel.
OTI_Création d’un centre de soutien pour les personnes atteintes du cancer et leurs proches.
OTI_design_.
BLO_Rénovation et transformation pour la création d’une nouvelle cafétéria.
BLO_design.
CLO_design_.
CLO_Rénovation et transformation de combles pour la création d’un espace de pause et rencontre.
SWLS_Travaux de transformation et de création de locaux pour un Centre Technique.
AML_Création d’un restaurant dans une arcade commerciale.
FIL_.
BXP_Projet pour PME en construction modulaire.
SW LS3_Travaux de transformation et de création de locaux pour un Centre Technique.
EPP_Transformation et extension d’une école enfantine.
KRM_Rénovation d’une cafétéria.
BTG2_Transformation et rénovation d’un restaurant.
BTG1_Transformation et rénovation d’un restaurant.
SW RW_Travaux de transformation et de création de locaux pour un Centre Technique..
CTX_Extension et rénovation d’une maison d’habitation.
VRN_.
CC_.














































